越质朴,越高级!80㎡侘寂风两居,用自然材质,打造不凡的诗性住宅!
-
日期:2022-08-30
-
来源:本站
-
点击:332
对“侘寂风”近几年的突然兴起,
也许有卡戴珊一家“豪华毛坯房”的影响,
但小编认为最重要的原因,
还是三年疫情让快节奏的社会被迫放慢,
远程办公、居家文化的愈发普遍,
也让人们也开始重新思考“家”的意义。
此时“侘寂风”质朴、自然、宁静的气质,
就恰恰弥补了人们心中的这部分空缺。
今天这个小家位于北京丰台区,
居住者是一对夫妻他们的一位长辈。
长辈年纪虽大,心态却年轻时尚,包容性强,
而男主人需要一个在家办公的小区域。

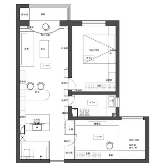
原始户型图
原始户型属于标准的“三阳开泰”两居室,
80㎡,没有太多的硬伤BUG。
主要问题在于厨房空间尺寸很小,
不能实现厨房基本的功能,
甚至连冰箱都无处存身;
此外,进门玄关紧挨着卫生间,
二者之间也缺乏协调的空间关系。
基于以上两点和业主的习惯、需求,
设计师对户型做了新的规划。

平面布置图
改造要点提示:
1、玄关区向右侧借了次卧空间,实现了衣鞋等收纳,同时也将冰箱规划在此处;
2、卫生间格局和动线重新规划,洗手盆/马桶间/淋浴房三分离,洗手盆位置与洗衣机烘干机巧妙整合,再用设计手法让空间变得更加通透;
3、餐桌的形式结构与多功能操作台呼应,用横向的体块弱化竖条的空间;
4、男主办公设备很多,于是把办公区域设置在阳台,台面宽敞舒适。
玄关

这个视角是进门左侧、次卧正对的墙,
墙面上设计了小的方块透视,
并嵌入了磨砂玻璃砖,
给一墙之隔的卫生间内部增加亮度,
也让立面增加了结构上的趣味。
餐厅


位于C位的餐厅是全屋最大的亮点,
餐桌结合了餐边柜来设计,
墙面还增加了两组悬挂柜,
扩大储物空间且不会显得压抑。

客厅吊顶与中央空调风口处做了圆弧处理,
衔接了整体的弧形元素。
洗烘两件套的台面与餐边柜做齐,
既扩充了餐边的台面空间,
也可以缓解厨房小电器无处安放的问题。

在这个空间中餐桌周边是主要动线,
因此桌角用弧形替代方型,避免磕碰,
也能减弱它的尖锐感和体积感。
餐桌是设计师脑洞下的原创,
画出图纸后找合作的全屋定制厂家制作,
材质是天然大理石和烤漆板相结合。

餐椅特意选择了黑色木纹质感,
在空间中拉开深浅层次对比。
卫生间

卫生间区域实现了三分离,
盥洗台外置后与吧台结合,
设置高低差,组合成多功能操作台;
洗衣机烘干机内嵌在下方操作更加便捷。

盥洗台与吧台台面为岩板材质,
高低落差也根据功能的不同来设计。

悬吊的水滴型镜子,既是功能区之间的隔断,
也自然成为了空间中最好的装饰。


淋浴区和马桶间分别独立使用,
中间以固定茶色玻璃分隔两个空间,
外部是一组磨砂茶色玻璃推拉门,
作为两个空间门的开启方式。
客厅

木饰面从墙面延伸到阳台,
以弧形衔接,带来更柔和流畅之感。
阳台设置了给男主的工作区,
大桌面宽敞舒适,可容纳诸多办公用具,
窗帘也设计了一个小的弧形轨道,
拉起窗帘后就是独立的工作区。

吊顶上方做了异形造型,十分吸睛,
中间内嵌了银镜,视觉上增加了空间的延伸。

墙面全部是肌理感的浅沙色,
比起白墙更显温和自然。

沙发搭配了模块的形式,
全亚麻的质感,舒适有意境。


木饰面背景墙设计了格栅拼接的形式,
左右两侧以弧形转角衔接,
下方设置层板用于置物+装饰。
“枯木”植物在墙角壁灯映照下,
成为一处宁静有意境的点缀。

屋主平时用电视的时候不多,
所以选择了投影幕布,
不用时可以隐身,空间会更加简洁。
主卧

主卧以木纹和微水泥两个元素为主,
保持整体空间的元素统一的同时,
没有多余装饰,更显自然轻松。

吊顶衔接了弧形元素,
主要照明以天际线灯和灯带为主,
比起躺在床上会刺眼的主灯,
这样的灯光设计更温柔均匀,
有助于打造睡眠氛围。
次卧

次卧是给长辈休息的空间,
床与储物结合做了地台床的形式,
上方吊顶也用了木饰面的材质
进行一个空间分割。

床头与书桌一体结合,
同时实现置物和阅读的功能。
厨房

厨房空间不大,将利用率做到最大,
米色系也衔接了整体的色调。

每个“极简”类型的项目
在落地过程中都有着无数的细节挑战,
这套也不例外,从施工到定制,
到各个细节收口的呈现,
苛求细节才能呈现所谓的高级。
人生如茶,沉时坦然,浮时淡然,
拿得起也需要放得下。
尽管身处大都市,幸得一处容身所,
朴素的空间衬托着精神的丰富,
滴滴生活真味渗透其中,依然是大美。









